無標題文件
門市部
| 可運送 | 可現場看貨 | 可詢價 | 客製化訂製 |
會員登入
|
會員帳戶
|
結帳
|
繁 /
EN
Your browser does not support JavaScript!
商用變頻冷藏冷凍冰箱
商用變頻冷藏展示冰箱
商用變頻工作台冰箱
冰箱
工作台冰箱
沙拉/冰品/咖啡工作台冰箱
展示櫃
冰櫃
開放櫃
後補展示櫃
花卉冷藏櫃
紅酒櫃
坪裝凍庫
冷藏廚餘機
小菜廚
急速冷凍庫/急速冷凍櫃/急速冷凍機
美國萬利多牌
日本星崎企鵝牌
ICE O-Matic
台灣力頓牌
Snooker製冰機
霜淇淋機
冰淇淋機/冰棒機
冰淇淋展示櫃
雪花機/炒冰機
均質老化機
煮麵機
炒台/煎台/燒烤台
油炸機/脫油機
蒸箱 / 蒸飯機
高湯爐
保溫消毒櫃
西餐爐
油煙淨化器
鼓風爐/七星爐/腸粉爐
蒸烤箱
工作檯/水槽
手推車/回收餐車
炊鍋
專業商用爐具組合櫃工作檯
法式爐
洗碗機
紅外線燒烤爐
低溫烹調機
濾油機
攪拌機
麵糰分割機/豆餡分割機
整形機
切片機
壓麵機
出爐架
發酵箱
麵糰櫃
烤箱
切菜/切蔥/切絲機
蘿蔔泥專用機
薯條機
削皮機
粉碎機
壓汁/榨汁機
快速磨濾豆機
脫漿機/煮漿機
切肉片機
絞肉機
電動嫩肉斷筋機
雞鴨分割機
全自動珍珠粉圓芋圓製造機
糖炒栗子機
水餃機系列
肉酥乾燥機
豆餡攪拌機
炒食機
炒糖機
蛋餅機
壓製麵條機
混合機/香腸充填器
研磨機
桌上型鋸台
半自動咖啡機
全自動咖啡機/美式咖啡機及周邊
(鮮茶咖啡)二用機
磨豆機
果糖定量機
紅外線烤爐
烤雞爐
履帶式烘烤機/自動輸送烘烤機
自助餐/餐盤保溫車組
保溫鍋/保溫湯鍋/保溫湯爐
保溫展示櫥
果汁冷飲機
雪泥冰沙機
保溫燈台
封口機/醬包機
生機調理/萃茶/冰沙/果汁機
榨果汁機
爆米花機
日本溫酒機
麵包保溫箱
單連果汁鼎/咖啡鼎
超高功率營業用電磁爐
刨冰機/雪花冰刨冰機/衛生冰塊刨冰機
搖茶/雪克機
桌上/落地開水機/蒸氣熱水機
煮茶機
POS系統
蒸包機
鬆餅/可麗餅/熱狗機/巧克力噴泉機/蛋捲機/吐司堡機/煎餃機/鯛魚燒機
黑輪/關東煮機
溫罐機
煮飯鍋/保溫飯鍋
咖啡烘焙機
咖啡細口壺/摩卡壺/冰滴咖啡壺
奶泡杯/拉花杯/雪克杯(搖酒器)/壓粉器
咖啡匙/茶匙/牛奶匙/調棒
冷水壺/注酒器/盎斯杯/雪克杯
熱水器/瓦斯爐/飲水機/排油煙機/烘碗機等
各式爐具
鍋/鼎/桶/盆類
茶桶/冰桶
不鏽鋼製品/調理盆/盒/盤/爐架
配件
鐵板類/牛排鐵盤/鐵板煎盤
煎皿/爐圍/蒸籠/櫥櫃/玻璃展示櫥
小吃器具
雞蛋糕/章魚燒/煎蛋皿/紅豆餅爐/鯛魚燒
火鍋桌客製
環保冷藏廚餘機
環保垃圾儲存機
無人販售機
自助點餐/售票系統
無人售貨機
智能行銷/自助結帳/互動貨架/手機掃碼下單系統
首頁
>
速得意作品集
>
廚房規劃
Your browser does not support JavaScript!
Your browser does not support JavaScript!
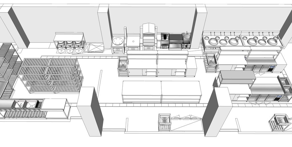
佛光山佛光大道滴水坊廚房規劃
瀏覽數
友善列印
Your browser does not support JavaScript!
新增到收藏夾
將此文章推薦給親友
稱呼:
親友Email:
推薦說明:
請輸入推薦說明
驗證碼:
驗證碼
:
Voice Play
9886
更換驗證碼
本功能需使用支援JavaScript之瀏覽器才能正常操作
評論列表
評論列表
Your browser does not support JavaScript!
目前還沒有該資訊的任何評論
發表評論
* 主旨:
* 姓名:
* Email:
* 評論內容:
最多 500 字.
驗證碼
:
Voice Play
2300
更換驗證碼
本功能需使用支援JavaScript之瀏覽器才能正常操作
本功能需使用支援JavaScript之瀏覽器才能正常操作
Your browser does not support JavaScript!
目前還沒有該資訊的任何評論